eurodombg.imot.bg Обяви 0 За нас Контакти
Продава ПАРЦЕЛ
област Стара Загора, с. Малка Верея
7 300 €
14 277.56 лв.

(20 €, 39.12 лв./m2)
Цената е с включено ДДС
История на цената
Коригирана в 14:06 на 30 април, 2026 год.
Обявата е посетена 354 пъти.
Площ:
365 m2
Регулация:
ДА

Описание на имота:


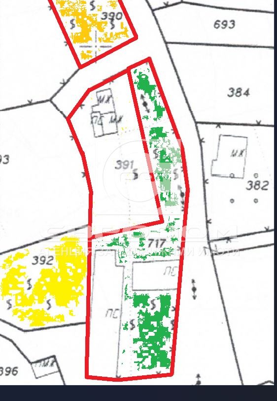
Продавам съседни парцели с площи от 365 кв.м., 665 кв.м. и 1143 кв.м. в местността 7- ми километър, общ. Стара Загора. Цена от 20 евро за кв.м. Парцелите са с номера 390, 392 и 717 в скицата.

Представяме Ви отлична възможност за инвестиция или изграждане на Вашия бъдещ дом **парцел с площ от 809 кв.м**, разположен в предпочитан район на **Местност 7-ми километър**, общ.Стара Загора. Имотът се предлага на цена от **16 180 **, което го прави изключително атрактивен избор за хора, търсещи спокойствие, простор и близост до града.
- Подходящ за жилищно строителство, вила.
- Имотът предлага възможност за създаване на дом сред тишина и природа.
- Лесен достъп до гр. Стара Загора.
- Районът е предпочитан за живеене поради спокойната атмосфера и чистия въздух.
Локацията осигурява бърз и удобен достъп до града, което го прави отличен избор за хора, търсещи баланс между природа и градски удобства.
Свържете се с мен за повече информация и оглед!

ОБЪРНЕТЕ ВНИМАНИЕ НА СЛЕДНОТО:
Цялата информация и описаниe на имота, съдържащи се в тази обява, се основават изключително на информация, предоставена от собственика или други трети страни. Не поемаме отговорност за пълнотата, точността и навременността на тази информация.
Свържете се с отговорния брокер, цитирайте номера на офертата, която представлява интерес за Вас и уточнете детайлите! Имайте предвид, че по телефон не даваме информация за цените на имотите по категории, райони и т.н. Ако имате нужда от такава информация свържете се с наш брокер и запазете час за среща в наш офис.
По време на оглед нашият брокер ще се легитимира пред Вас! Легитимацията ви гарантира, че брокера е редовен член на НСНИ, приел е и спазва Етичният кодекс на НСНИ, е законен представител на агенцията, с която се асоциира ( видно от самата карта ) и можете спокойно да му се доверите за осъществяването на една успешна сделка с недвижим имот. Моля изисквайте този документ от нашите брокери при среща с тях във връзка с изпълнението на служебните им задължения! Картата за легитимация е със следните задължителни атрибути:
Снимка на брокера
Трите имена на брокера
Длъжност
Агенция, с която е асоцииран
Номер в професионалният регистър на агенциите, брокерите и агентите на недвижими имоти
Годината на валидност
Логата на НСНИ Национално Сдружение Недвижими Имоти и Професионалния регистър.
За контакт:
0889763370
Брокер:
Нели Тончева
0889763370
Офис: НТС
Още оферти от брокера: Продава | Дава под наем | Купува | Наема
Агенция:
ЕВРОДОМ
0888198765
ЕВРОДОМ  logo
Медал за прослужено време
В imot.bg от 2004 г.
eurodombg.imot.bg
Адрес:
област Стара Загора, гр. Стара Загора, бул'Ген.Столетов' 113- НТС, ет.4, офис 36
http://www.евродом.бг
ИЗПРАТИ ЗАПИТВАНЕ
ИЗПРАТИ ЗАПИТВАНЕТО

Продава ПАРЦЕЛ
област Стара Загора, с. Малка Верея
Обява: 1r177495412478150

7 300 €
14 277.56 лв.
История на цената
(20 €, 39.12 лв./m2)

Цената е с включено ДДС
ЗАПАЗИ ОБЯВАТА

Местоположение: област Стара Загора, с. Малка Верея